Listed by Laura Hodge of Phyllis Browning Company
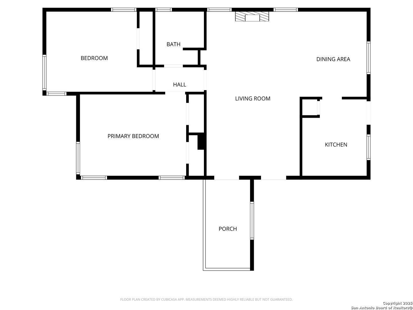
Escape to this quiet Olmos Park apartment! Located on the ground floor, enjoy a spacious open layout with natural light and ceramic tile (no carpet!). With two large bedrooms, it's an ideal residence for professionals. The quaint bathroom is clean and bright with original tile floor and shower/tub combo. The kitchen includes full-sized appliances: gas range, oven, refrigerator, and a microwave. Easily come-and-go via the back kitchen door, leading to the carport. One reserved (covered) parking space is included, along with water/sewer utilities. Located blocks from boutique shopping, restaurants, and Olmos Park's private fire and police station--plus quick access to Hwy 281 and I-10! Drive downtown or to the airport in minutes. Per owner: No pets, and no smoking on property. Coin laundry (washer/dryer) available onsite for all tenants.

Listing Tools

Property Details of 515 E Olmos Drive, Unit 2

Property Details

Interior Features

Community

Map Location

Based on information submitted to LERA MLS as of November 8, 2025 8:32 PM EST . All data is deemed reliable but is not guaranteed accurate by the MLS. All information should be independently reviewed and verified for accuracy. IDX information is provided exclusively for consumers’ personal, noncommercial use and may not be used for any purpose other than to identify prospective properties consumers may be interested in purchasing.

Hi there! How can we help you?

Contact us using the form below or give us a call.

Send Us A Message:

I agree to receive marketing and customer service calls and text messages from Nicole McClane. To opt out, you can reply 'stop' at any time or click the unsubscribe link in the emails. Consent is not a condition of purchase. Msg/data rates may apply. Msg frequency varies. Privacy Policy.

Do not fill in this field:

This site is protected by reCAPTCHA and the Google Privacy Policy and Terms of Service apply.

Hi there! How can we help you?

Contact us using the form below or give us a call.

Send Us A Message:

Do not fill in this field:

This site is protected by reCAPTCHA and the Google Privacy Policy and Terms of Service apply.

Hi there! How can we help you?

Contact us using the form below or give us a call.

Send Us A Message:

Do not fill in this field:

This site is protected by reCAPTCHA and the Google Privacy Policy and Terms of Service apply.

Do not fill in this field:

This site is protected by reCAPTCHA and the Google Privacy Policy and Terms of Service apply.

Do not fill in this field:

This site is protected by reCAPTCHA and the Google Privacy Policy and Terms of Service apply.

Do not fill in this field:

This site is protected by reCAPTCHA and the Google Privacy Policy and Terms of Service apply.

$

Do not fill in this field:

This site is protected by reCAPTCHA and the Google Privacy Policy and Terms of Service apply.