Listed by Dylan Thomas of Davidson Properties,Inc.
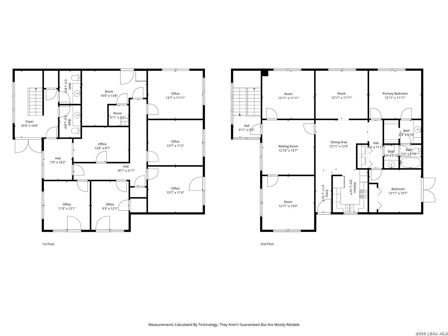
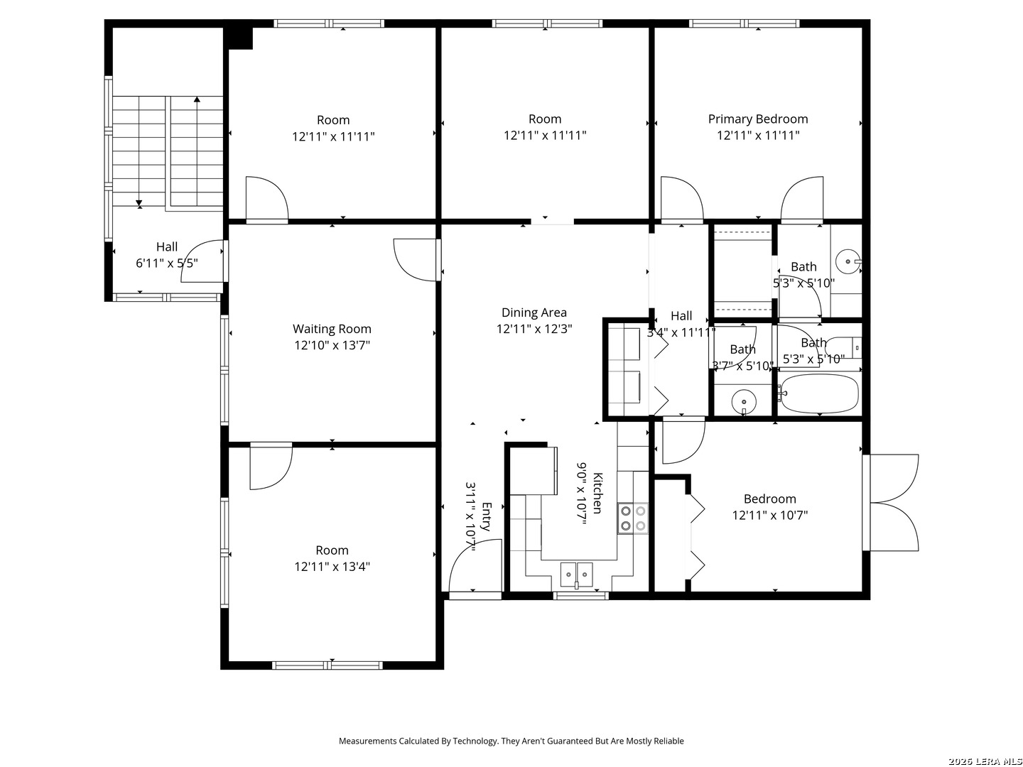
Fantastic Opportunity to Purchase Freestanding Office Building in Prime Broadway Corridor Location in Alamo Heights. Great Parking with 16 Dedicated Spaces & Signage Opportunity at Front Monument & Building Exterior. 3,648 SF Building Ready for Immediate Occupancy or Renovation, Fantastic Profile for Investors or Owner/User. Enter to Primary Foyer with Utility Closet & Restrooms, Existing First-Floor Build is Medical Office with Reception Area & Waiting Room, Individual Treatment Offices, Large Storage/Utility & Break Room. Ground Floor Exits to Side & Back Patio Spaces. Stairwell Leads to Second-Floor, Existing Build is Medical Office with Waiting Room & Separate Treatment Rooms. Full 2-Bedroom, 1-Bathroom Apartment with Kitchen Adjacent & Laundry Area, Could Easily be Converted to Additional Office Space or Kept As-Is for Live/Work Arrangement. Separate Exterior Stairwell Access to Upstairs Apartment. Composition Shingle Roof Recently Replaced, Central HVAC, Slab Foundation, Single-Meter Utilities.

Listing Tools

Property Details of 7870 Broadway Building C

Property Details

Map Location

Based on information submitted to LERA MLS as of April 14, 2026 10:37 AM EDT . All data is deemed reliable but is not guaranteed accurate by the MLS. All information should be independently reviewed and verified for accuracy. IDX information is provided exclusively for consumers’ personal, noncommercial use and may not be used for any purpose other than to identify prospective properties consumers may be interested in purchasing.

Hi there! How can we help you?

Contact us using the form below or give us a call.

Send Us A Message:

I agree to receive marketing and customer service calls and text messages from Nicole McClane. To opt out, you can reply 'stop' at any time or click the unsubscribe link in the emails. Consent is not a condition of purchase. Msg/data rates may apply. Msg frequency varies. Privacy Policy.

Do not fill in this field:

This site is protected by reCAPTCHA and the Google Privacy Policy and Terms of Service apply.

Hi there! How can we help you?

Contact us using the form below or give us a call.

Send Us A Message:

Do not fill in this field:

This site is protected by reCAPTCHA and the Google Privacy Policy and Terms of Service apply.

Hi there! How can we help you?

Contact us using the form below or give us a call.

Send Us A Message:

Do not fill in this field:

This site is protected by reCAPTCHA and the Google Privacy Policy and Terms of Service apply.

Do not fill in this field:

This site is protected by reCAPTCHA and the Google Privacy Policy and Terms of Service apply.

Do not fill in this field:

This site is protected by reCAPTCHA and the Google Privacy Policy and Terms of Service apply.

Do not fill in this field:

This site is protected by reCAPTCHA and the Google Privacy Policy and Terms of Service apply.

$

Do not fill in this field:

This site is protected by reCAPTCHA and the Google Privacy Policy and Terms of Service apply.